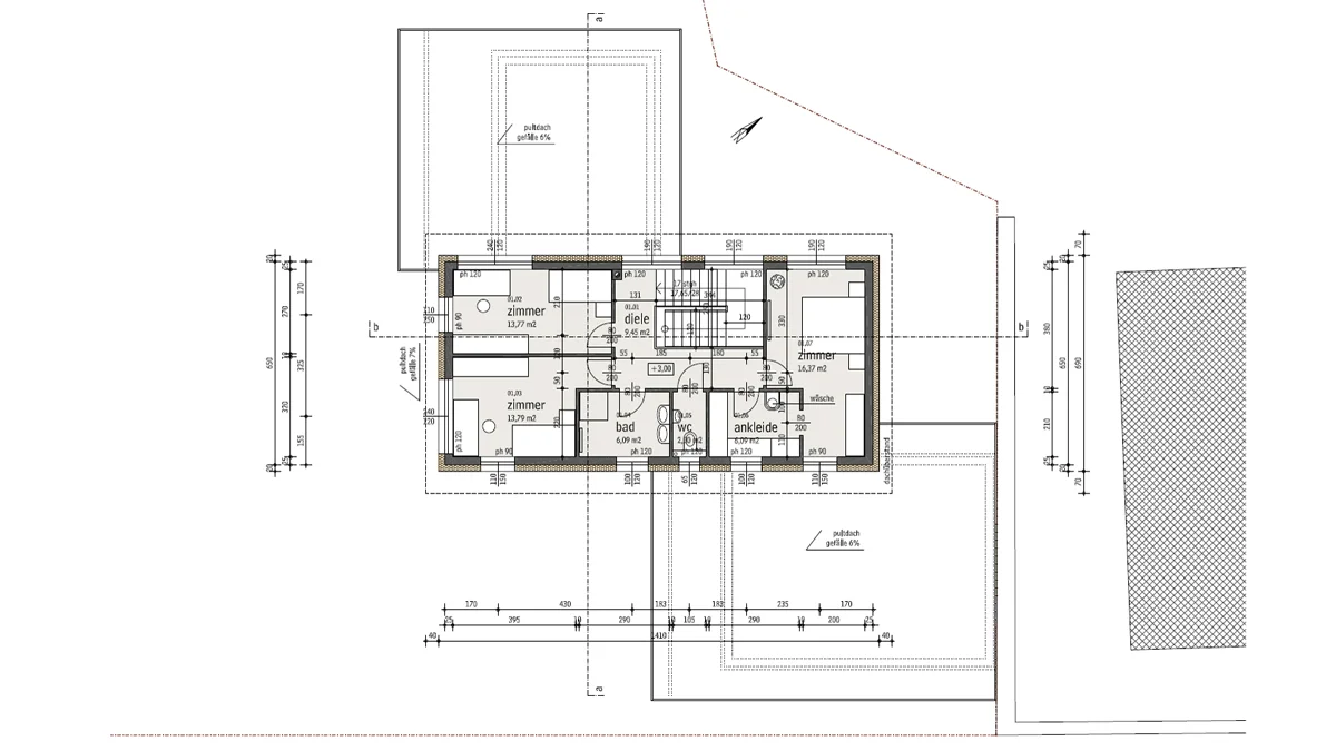
Wohnhaushaus SC
Einfamilienwohnhaus Entwurf 1.0 und Entwurf 2.0 mit behördlicher Einreichung in Friesach.
Planung: 2013 | Baubeginn vsl. 2014
